Alma Rd, Heaton Moor

The client brief was to comprehensively renovate and replan the existing house, both internally and externally, to extend to the side and into the roof space, and connect a large, detached garage to the main dwelling in order to increase the overall floor area. Internally, the house suffered from a poorly resolved and disjointed layout, while externally its appearance read as an awkward addition that disrupted the otherwise balanced street scene.

proposed design

project details

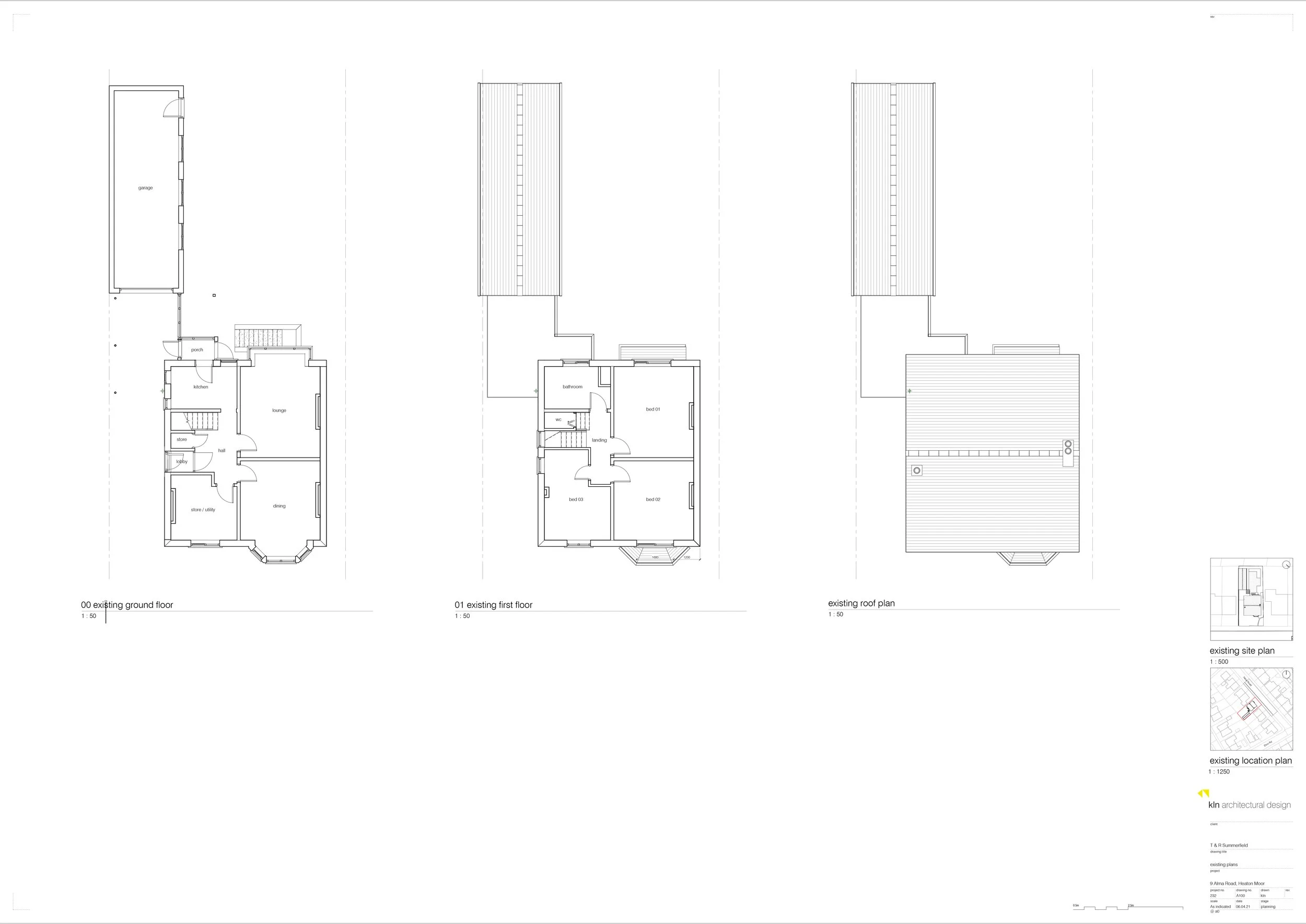
The existing dwelling exhibited a poor overall design and layout, featuring an unconventional side entrance and fenestration pattern that was aesthetically inconsistent with the surrounding houses. The addition of a small, poorly constructed rear porch extension and screen wall, together with a flat-roofed canopy to the rear garage, further contributed to the disjointed external appearance.

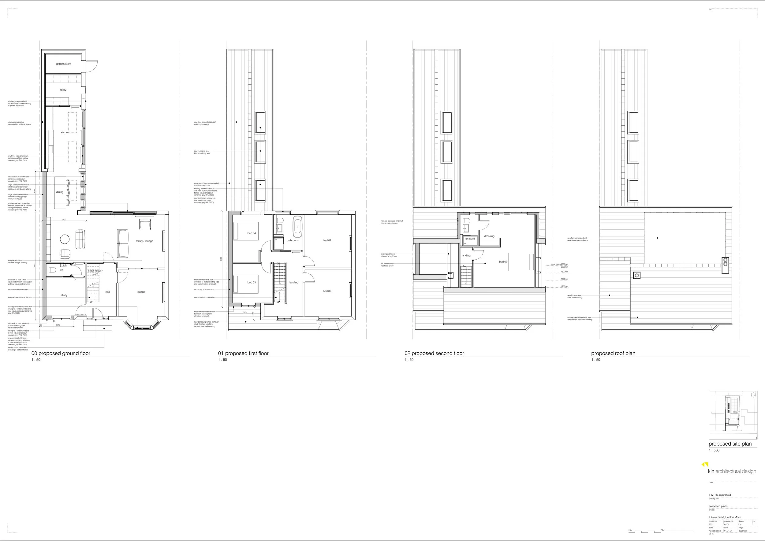
The client brief sought to rationalise the existing ground-floor layout by connecting the garage to the main house and converting it into habitable accommodation to contain a new kitchen and utility. This intervention significantly increases the usable ground-floor area. The brief also required an open-plan lounge, dining and kitchen space, a home office, and the addition of two further bedrooms to create a five-bedroom dwelling, including a master bedroom with ensuite. Externally, the client wished to enhance the appearance of the front elevation so the house sits harmoniously with neighbouring properties and the adjacent conservation area. To the rear, a contemporary architectural solution was sought to unify new and existing built elements while maximising natural light to the internal spaces.

The proposed design responds to the brief through the addition of a two-storey side extension, a small single-storey rear extension, and a dormer roof extension. Internally, the layout has been comprehensively reconfigured. The entrance door has been relocated to the front elevation, creating a new, generous entrance hall with a centrally positioned staircase and a spacious first-floor landing. This entrance volume is carefully located to efficiently serve the principal habitable rooms with minimal circulation space, while also providing a balanced and coherent front elevation.

To the rear of the property, the integration of the existing garage with the new single-storey infill extension creates a large, open-plan lounge, kitchen and dining space. This is complemented by a library / reading area and a utility room accessed directly from the kitchen, supporting modern family living and flexible use of space.

At first-floor level, the bathroom has been relocated to allow for the formation of two new double bedrooms within the side extension. The staircase continues to the converted roof space, where a zinc-clad dormer extension provides a generous and characterful master bedroom with ensuite facilities.

Externally, the two-storey side extension is finished in brick carefully selected to closely match the existing brickwork, ensuring visual continuity. A new roof canopy extending across the front elevation conceals the planning required first-floor setback and references the porch canopies of the conservation-area properties opposite, reinforcing contextual harmony.

To the rear, the existing garage and new single-storey infill extension are clad in charred black timber, treated through a controlled charring process. This technique produces a deep black, textured finish while enhancing the timber’s natural resistance to pests, rot, moisture, and fire. The resulting carbon layer improves durability and longevity, offering a sustainable and low-maintenance cladding solution with a distinctive tactile quality.

The dormer roof extension is finished in pre-weathered standing seam zinc, providing a contemporary architectural expression that complements the charred timber cladding. Zinc has been selected for its durability, low maintenance requirements, and excellent weather resistance. Both the existing and proposed roofs are finished in dark grey roof tiles, allowing the development to sit comfortably alongside neighbouring properties with slate roof finishes.

existing drawings

existing / proposed views

existing photos

Previous
Previous

Fieldbank Road

Next
Next

Sunnybank