Cartmell Rd, Lytham

The client brief was to extend the existing bungalow into the roof space to form a 1.5-storey dwelling, providing an open-plan lounge, dining and kitchen area at first-floor level, a new entrance porch, and a replacement for the existing conservatory using thermally efficient construction.

proposed design

project details

The existing bungalow was tired and in need of significant renovation, further compromised by poorly designed and inappropriately located conservatory extensions to both the front and rear elevations.

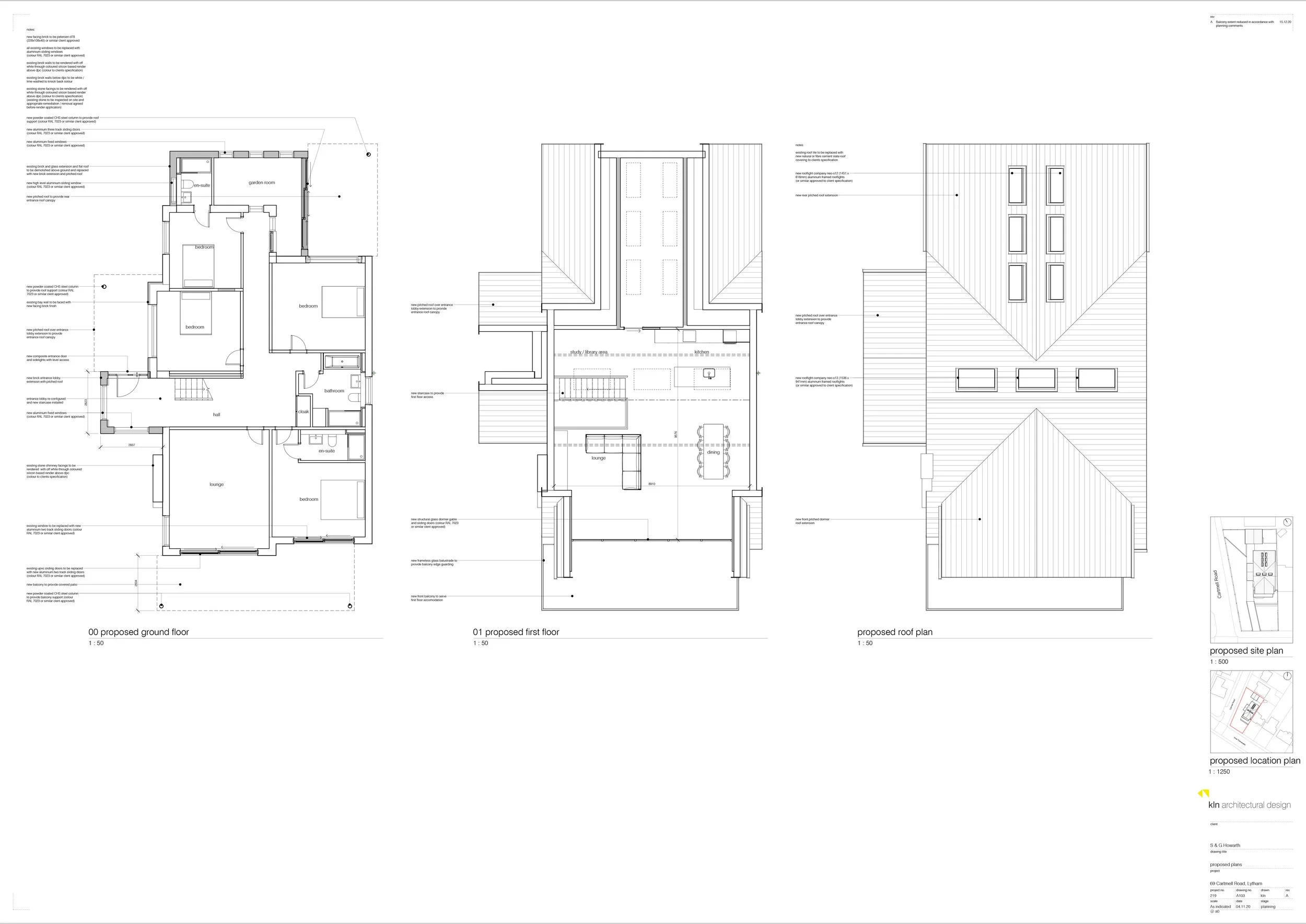
The client brief sought to extend the bungalow into the roof space and comprehensively renovate its external appearance to create a contemporary family holiday home. Located on the seafront, the dwelling required a design that maximised coastal views and external amenity space, while also providing shelter from the exposed conditions experienced during the winter months.

The proposed design responds to the brief through the introduction of a large glazed gable dormer and balcony structure to the front elevation, capitalising on sea views and enhancing the relationship between internal and external spaces. To the rear, a new roof extension spans the full width of the existing footprint, enabling the removal of the flat roof structure and the creation of a sheltered external area. A new entrance porch provides protection from the elements, with the main entrance relocated to the more sheltered north elevation. Extensive glazing to the porch introduces natural light into the central hallway and improves legibility of the entrance sequence.

Externally, the existing façades have been refurbished using an off-white, silicon-based, through-coloured render to unify the original structure. In contrast, the new porch, rear extension, and existing stone clad bay adjacent to the entrance, are finished in a natural light-coloured clay brick. Natural timber battens are used to line the soffits of the front dormer, balcony, entrance canopy and rear overhang, adding warmth and texture while reinforcing the contemporary coastal character of the dwelling.

site photos

existing drawings

existing / proposed views

existing photos

Previous
Previous

Brixham Avenue

Next
Next

Fieldbank Road