Brixham Avenue, Cheadle Hulme

The client brief was to replan and extend the existing house to improve the internal layout, provide additional living and bedroom accommodation, and renovate the external materials to enhance the building’s overall appearance.

proposed design

project details

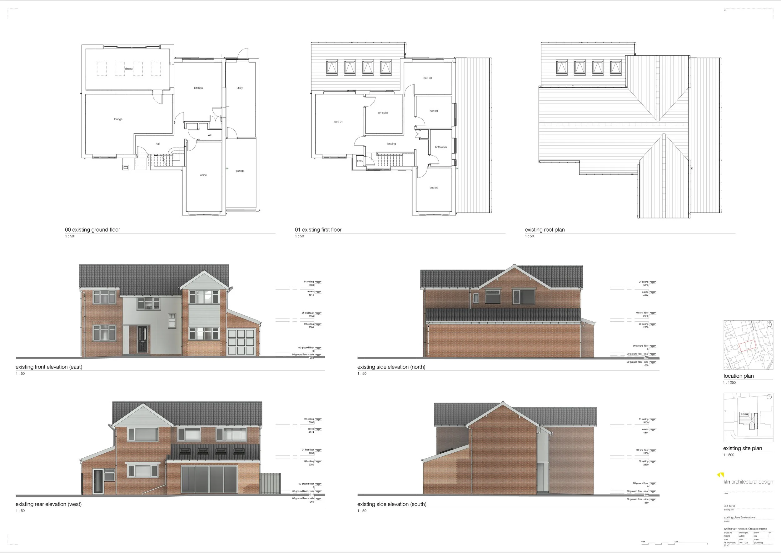
The existing house layout, together with a previous extension, resulted in disjointed ground floor spaces, while the level of bedroom accommodation was insufficient to meet the needs of the family. The entrance hall and circulation spaces were particularly constrained and suffered from limited access to natural light, creating a dark and enclosed internal environment.

The client brief sought to address these shortcomings by improving the overall ground floor layout and creating a generous open-plan kitchen, dining, and family living space. An enhanced entrance hall was also required, along with significantly improved access to natural light to achieve a more open and spacious feel throughout the home. At first floor level, the brief included the creation of a new master bedroom with en-suite facilities, together with additional floor space to the third and fourth bedrooms, providing four king- or double-sized bedrooms overall.

The proposed design responds to the brief through the addition of a large single-storey rear extension and a first-floor side extension, combined with extensive internal reconfiguration to deliver a cohesive and functional layout.

Externally, the existing façades have been renovated using an off-white, silicon-based, through-coloured render. In contrast, the new single-storey extension, the front elevation of the two-storey side extension, and the two-storey section of the existing structure adjacent to the principal entrance are articulated with timber cladding laid at a varying 45-degree orientation. The cladding comprises nominally 50mm-wide battens manufactured from modified timber to enhance durability. The timber is brushed to accentuate the natural grain and finished with a specialist factory-applied coating, pre-weathering the material to achieve a consistent silver-grey appearance over time.

existing drawings

existing / proposed views

Existing photos

Previous
Previous

Belton House

Next
Next

Cartmell Rd