Oriel Cottage, Cheadle Hulme

The client brief was to design a side annex extension to accommodate visiting family and friends, renovate or replace the existing rear glazed extension, and design a detached double garage with an integrated gym.

proposed design

project details

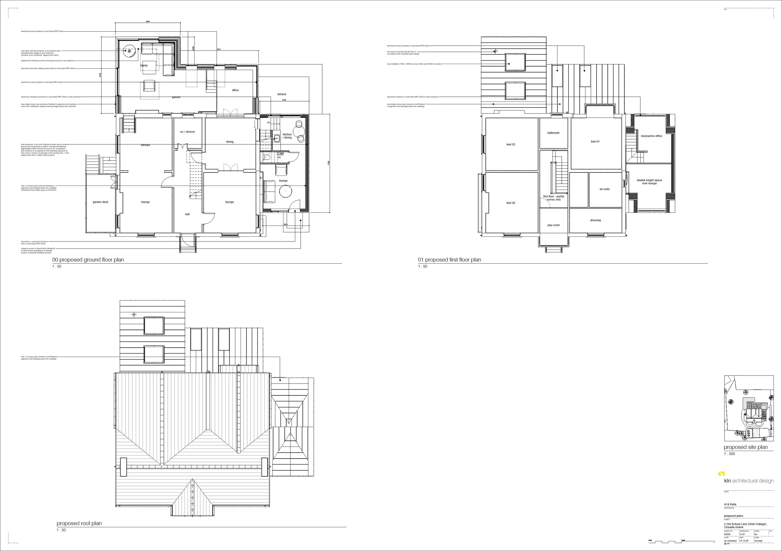
The rear glazed extension previously suffered from poor thermal performance in winter due to large areas of poorly insulated glazing. The rear space has now been reconfigured to reduce the overall glazed area, improving control of heat loss and solar gain. The existing footprint has largely been retained to make use of the current structure and foundations, with a modest extension introduced to enhance room functionality and allow for multiple future uses.

The side annex extension has been designed as a 1.5-storey volume, with a mezzanine level, providing flexibility for use as either a mezzanine office or an additional bedspace. A double-height space is introduced at the front of the plan to enhance spatial quality and daylight penetration. The extension is located within a tree root protection area and has therefore been designed using a lightweight timber frame construction. It is raised above existing ground levels and supported by low-impact foundations to minimise disturbance and preserve the existing tree and root structure.

The proposed external finish of pre-weathered, or pre-patinated, red standing seam zinc has been selected to complement the existing brickwork, while clearly distinguishing the new extensions from the original house.

existing drawings

existing / proposed views

existing photos

Next
Next

Belton House